Liberty Road, Glenfield, Leicester

For Sale £99,950

1 1 1

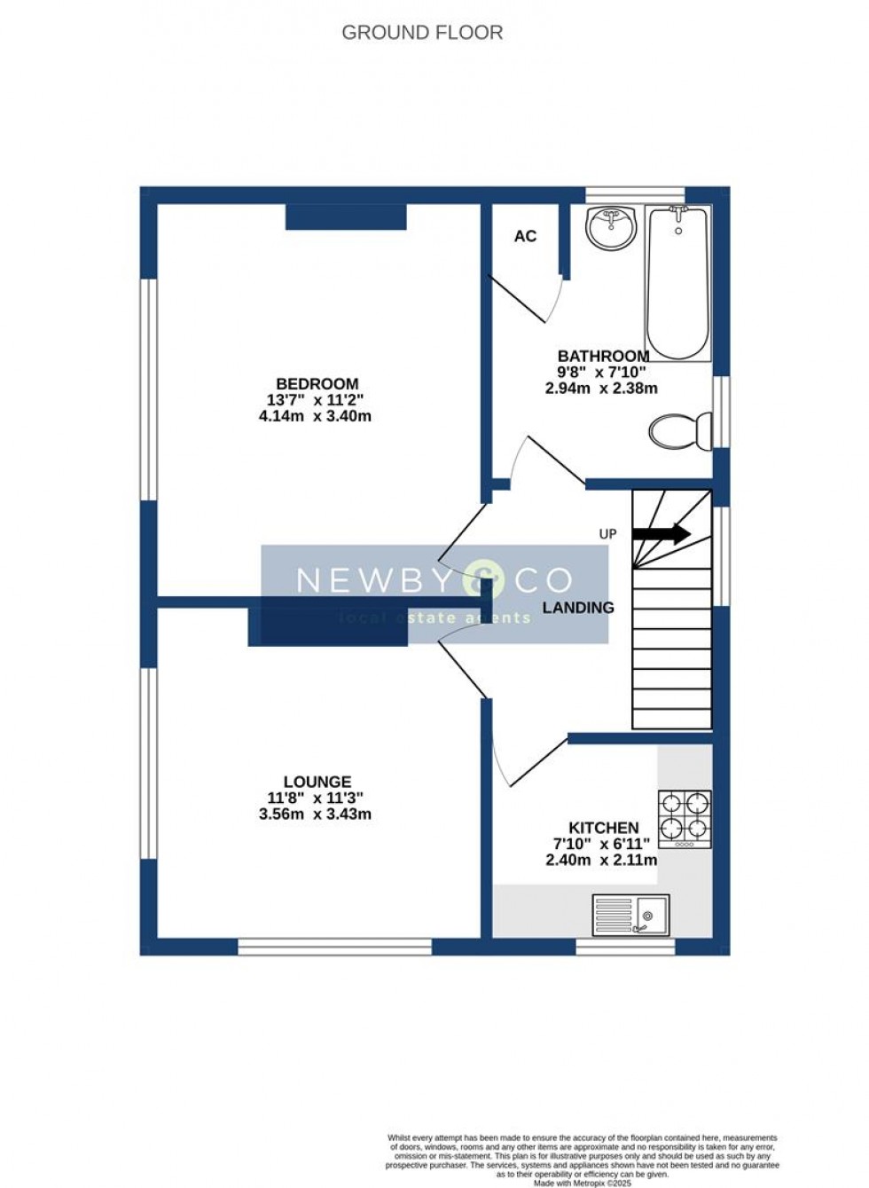
Hall

There is a communal entrance hall for the two flats with a UPVC double glazed entrance door and coir flooring.
There is a firedoor leading to a staircase up to the landing which has UPVC double glazed window to side, fitted carpet, doors leading to all rooms.

Lounge (3.56m x 3.43m)

UPVC double glazed windows to front & side, fitted carpet, electric heater.

Kitchen (2.40m x 2.11m)

Double Bedroom (4.14m x 3.40m)

UPVC double glazed window to side, fitted carpet, electric heater.

Bathroom (2.94m x 2.38m)

UPVC double glazed opaque windows to rear & side, tiled floor, heated towel rail, a modern white suite comprising of panelled bath, pedestal wash hand basin, wc, extractor fan, airing cupboard housing hot water cylinder, access to loft.

Outside

There is a garden to front and a driveway & clothes drying area to side.

Glenfield

Glenfield is a popular large village 5 miles to the West of Leicester city centre with a population of approx 9,500. There are two well regarded primary schools, three pubs, St Peters church and a range of local shopping facilities including a relatively new Morrison's store on Station Road. There is nearby open countryside including Bradgate Park and Gynsills conservation area. There is easy access to M1, A46 & A50 main routes. Glenfield General Hospital & Leics County Council are two large employers. Glenfield is mentioned in the Domesday book of 1086 and is also famous for its now defunct railway tunnel built by Stevenson and once the longest in the world. Regular bus services into Leicester serve the village and Leicester train station is approx 5 miles away.

Local Authority & Council Tax Info (Blaby)

This property falls within Blaby District Council (blaby.gov.uk)
It has a Council Tax Band of A which means a charge of £1,582.11 for tax year ending March 2026
Please note: When a property changes ownership local authorities do reserve the right to re-calculate council tax bands.
For more information regarding school catchment areas please go to www.leicestershire.gov.uk/education-and-children/schools-colleges-and-academies/find-a-school

  • FIRST FLOOR APARTMENT
  • ONE OF JUST TWO FLATS
  • POPULAR RESIDENTIAL LOCATION
  • ELECTRIC HEATING
  • UPVC DOUBLE GLAZING
  • LOUNGE & FITTED KITCHEN (OVEN/HOB)
  • BEDROOM & BATHROOM
  • PARKING & DRYING AREA
  • LEASEHOLD - 150 YEARS
  • COUNCIL TAX BAND A
Floorplan for Liberty Road, Glenfield, Leicester
EPC Graph for Liberty Road, Glenfield, Leicester
Similar Property

Get an instant online valuation

Find out how much your property is worth